Ottawa Crane Rental has a well maintained fleet of mobile cranes. Our maintenance and service programs promote maximum working time. We also have an inventory of rigging and attachments to handle any heavy lifting situation.

The AC 5.140-1 is the strongest machine in the 160T class. Its robust and agile undercarriage chassis, coupled with 72% gradeability, affords outstanding off-road mobility to reach and handle any construction site.
The AC 5.140-1’s boom length is versatile for general construction, yet strong enough for heavy lifts including tilt-up panels. The bi-fold jib includes an integrated heavy lift jib that can be installed without a support crane and cover numerous load cases.
The latest engine technology increases the operating volume, allowing inner cities to be approached and addressing environmental zone concerns without issue.
Features
• BRAND Tadano
• MAX. CRANE CAPACITY 220 t
• MAIN BOOM LENGTH 13.2 m – 68 m
• BOOM EXTENSION
1.6 m / 5.8 m – 36 m / 10.4 m – 22.8 m
• MAX. TIP HEIGHT 108 m
• MAX. COUNTERWEIGHT 71 t
• OUTRIGGER BASES 9.05 m x 8.30 m
• HOIST LINE PULL 10.0 t
• MAX. RADIUS 84 m
• GVM 135 t
• DIMENSIONS
L: 15.40 m W: 3.00 m H: 3.99 m
• MAX. MAIN BOOM LENGTH 68 m
• AXLES 5
• ENGINE Mercedes-Benz
• DRIVE 10 x 6 x 10 (10 x 8 x 10)


The AC 4.100L-1 is the most compact crane in its class, with a width of only 8.4 ft / 2.55m. Yet, it delivers impressively strong lift capabilities. With a long telescopic boom 194.9 ft / (59.4m and a 32.8 ft / 10m swing-away jib for a total of 227.7 ft / 69.4m, this crane offers the longest system length that can travel on four axles at a 13.2-ton / 12t load level. The strong capacities in axle load configuration results in an exceptionally economic taxi crane. The AC 4.100L-1’s size allows it to flourish with projects indoors or in dense urban environments where other cranes cannot tread.
Features
• Max. Crane Capacity: 120 USt
• Main Boom Length: 39.3 ft – 194.8 ft
• Boom Extension: 4.9 ft / 32.8 ft – 88.5 ft
• Max. Tip Height: 274.6 ft
• Max. Counterweight: 54,000 lbs
• Outrigger Bases: 26. 8 ft x 23.6 ft
• Hoist Line Pull: 15,040 lbs
• MAX Radius: 177.1 ft
• Dimensions: L: 41.7 ft W: 9.0 ft H: 12.8 ft
• Axles: 4
• Engine: Mercedes-Benz
• Drive: 8 x 4 x 8 (8 x 6 x 8)


The AC 3.060-1 combines compact flexibility, high transportability, and ease-of-use with the world’s longest telescopic boom on a fully roadable, 3-axle all terrain crane. The single cylinder telescoping system reaches 50m with an optional extension increasing that reach to 66m, outperforming all other cranes in its class. The automatic counterweight rigging system enables quick and easy setup, even via remote control outside the superstructure cab. Flex Base with stepless outrigger positioning grants outstanding versatility and performance. The AC 3.060-1 blends Tadano’s noted reliability with efficiency, as everything aboard this machine can be handled by just one person.
Features
• Max. Crane Capacity: 60 t
• Main Boom Length: 10.4 m – 50 m
• Boom Extension: 1.5 m / 9 m – 16 m
• Max. Tip Height: 69 m
• Max. Counterweight: 12.1 t
• Outrigger Bases: 6.90 m x 6.50 m
• Hoist Line Pull: 6.8 t
• Max. Radius: 44 m
• Dimensions: L: 11.67 m W: 2.55 m H: 3.61 m
• Axles: 3
• Engine: Mercedes-Benz
• Drive: 6 x 4 x 6 (6 x 6 x 6)


The TC500 series telescopic cranes are built to meet the wide-ranging needs of owner
operators who may use it for residential construction one day and bridge work the next.
No matter what the task, the 50-ton line of telescopic cranes is designed to get you to the
job and on the job quickly.
With it, you can:
• Go from Free-Swing to No-Free Swing with a flip of a switch.
• Set up quickly with radio outrigger controls
• Operate comfortably and confidently in its tiltable cab
Features
• 50-ton capacity @ 6 ft. radius
• 4 & 5-section proportional boom
• Optional telescopic jib
• 187 ft. maximum tip height
(with optional telescopic jib)
• Tiltable cab
• Out-and-down outriggers
• Remote outrigger controls


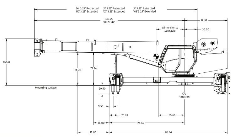
Full-capacity crane and aerial lift delivers ultimate productivity.
Features
• 36,3 t (40 USt) rating
• 43,3 m (142 ft) five-section boom
• Self-lubricating Easy Glide wear pads
• 862 kg (1900 lb) tailswing counterweight


The TC400 series telescopic cranes are built to meet the wide-ranging needs of owner
operators who may use it for residential construction one day and bridge work the next.
No matter what the task, the 40-ton line of telescopic crane is designed to get you to the
job and on the job quickly.
With it, you can:
• Travel to and between job sites at highway speed on a commercial chassis
• Set up quickly with radio outrigger controls
• Operate comfortably and confidently in its tiltable cab
Features
• 40-ton capacity @ 5 ft. radius
• 3, 4 & 5-section proportional boom
• Optional telescopic jib
• 187 ft. maximum tip height (with optional telescopic jib)
• Tiltable cab
• Out-and-down outriggers
• Remote outrigger controls


Features
• 23,6 t (26 USt) rating
• 31,4 m (103 ft) four-section boom
• Self-lubricating Easy Glide wear pads
• Internal anti-two block
